Localização
Carangola, Petrópolis – RJ
Ano do Projeto
2023
Previsão de conclusão
2024
Área construída
329m²
Arquiteto
André Daister
Este projeto abrange a transformação completa de uma residência unifamiliar de dois pavimentos. O espaço foi reimaginado para oferecer planta baixa livre no térreo, com espaços de convívio integrados de estar, jantar e cozinha, além de forte integração com o jardim frontal. O pavimento superior abriga os quatro quartos do imóvel, incluindo escritório em mezanino e suíte master com jardim de inverno exclusivo. O objetivo é criar um ambiente que não apenas atenda às exigências de estética e funcionalidade, mas que também esteja alinhado com conceitos atuais de arquitetura como integração de espaços amplos e conexão com o exterior.
O partido arquitetônico adotado segue características marcantes de arquitetura contemporânea, enfatizando linhas retas, formas simples, planta aberta e forte integração do interior e exterior. Com uma linguagem minimalista e contemporânea, a casa ganha sofisticação através da combinação de madeira, vidro e aço, resultando em um visual elegante e atemporal. A fachada principal é completamente redesenhada. Saindo do padrão tradicional de construção, as novas linhas retas, materiais naturais е grandes panos de vidro ditam o visual da nova arquitetura.
O espaço de estar, com lareira, se abre até a cobertura dando vão ao pé direito duplo, criando grande amplitude visual e espacial ao térreo que possui laje atual de cobertura com pé direito de altura diminuta. A integração entre os espaços internos e externos é um dos princípios centrais do projeto. O jardim frontal desempenha papel essencial nessa conexão, atuando como uma extensão natural da casa e ponto focal da vista desde os ambientes principais. Painéis de vidro e generosas aberturas complementam essa dinâmica, permitindo que a natureza envolva suavemente o cotidiano dos moradores.
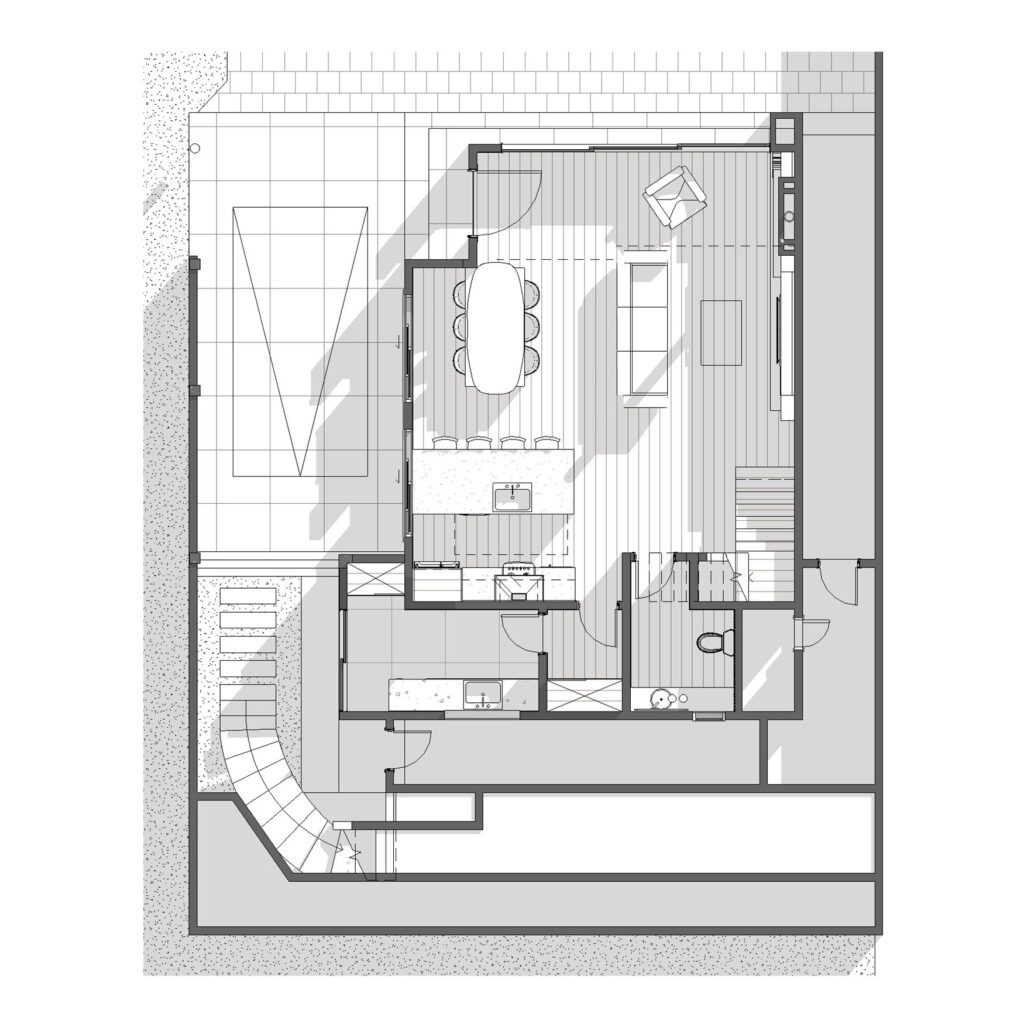
Uma ampla clarabóia sobre a ilha da cozinha banha o espaço com luz natural ao longo do dia, reforçando a relação entre o interior e o exterior e criando uma atmosfera leve e acolhedora.
A escolha prioritária para o sistema estrutural de estrutura metálica garante celeridade de execução de obra, vãos mais amplos e maior flexibilidade arquitetônica. O aço também permite perfis de vigas mais baixos do que os feitos em concreto, adoção vital para o térreo que já possui pé direito baixo.
A suíte master no pavimento superior possui ampla varanda frontal, escritório integrado em mezanino e banheiro com jardim de inverno exclusivo, para máxima iluminação natural para o espaço.
O pavimento térreo compreende sala de estar com lareira, sala de jantar e bancada integrada com a cozinha, em conceito totalmente aberto. Há acesso a um lavabo abaixo da escada para o pavimento superior. Através da despensa da cozinha se acessa a área de serviços, aos fundos. A garagem existente é ampliada e planificada.
No pavimento superior, a varanda frontal é da suíte master e conta com amplo closet e WC com banheira e jardim de inverno exclusivo. O mezanino do escritório se volta para o pé direito duplo do térreo, enquanto as outras suítes são voltadas para a lateral e fundos do lote.
A adoção do pé-direito duplo no espaço de estar, uma ampla clarabóia sobre a bancada em ilha da cozinha e o belo jardim de inverno exclusivo da suíte master são pontos marcantes do projeto, que buscam trazer máxima amplitude e luminosidade natural para um imóvel existente com dificuldades em espaços confinados.
Detalhes do projeto de interiores compreendem toda concepção, layout e dimensionamento final da cozinha e demais áreas sociais.
Com vistas a transformar completamente essa residência na serra, faz-se uso dos melhores conceitos de arquitetura contemporânea para abrir grandes vãos, ampliar e integrar espaços, conectar o espaço interno com o exterior.
Recriando-se a estética da arquitetura existente, transforma-se não apenas a sua identidade arquitetônica, mas se faz o melhor uso possível do espaço existente, otimizando o orçamento e gerando impacto estético e funcional nos pontos mais críticos desta residência.
A boa arquitetura contemporânea é capaz de trazer nova luz para construções de décadas passadas. O resultado final deste projeto nos faz entender que o potencial de qualquer imóvel está apenas guardado, esperando por um olhar mais crítico sobre si mesmo.
Bifrost is a very clean and contemporary WordPress Theme which fits any needs, it finds use in different purposes like agencies, freelancers, photographer, e-commerce stores.